imobiliare .net
Login
Inregistrare
Anunt
Tur 360
Alerte
Favorite
Mesagerie
Favorit
Sesizeaza neregula

Rahova, sos, Salaj, doua camere, etaj 1/9, complet mobiliat si utilat

An constructie
2019
Suprafata
61 m2
Confort
I
Tip apartament
decomandat
Etaj
1 / 9
Tip imobil
Bloc mixt
Nr. dormitoare
1
Interior
Stare buna
Nr. bai
1
ID
315863293

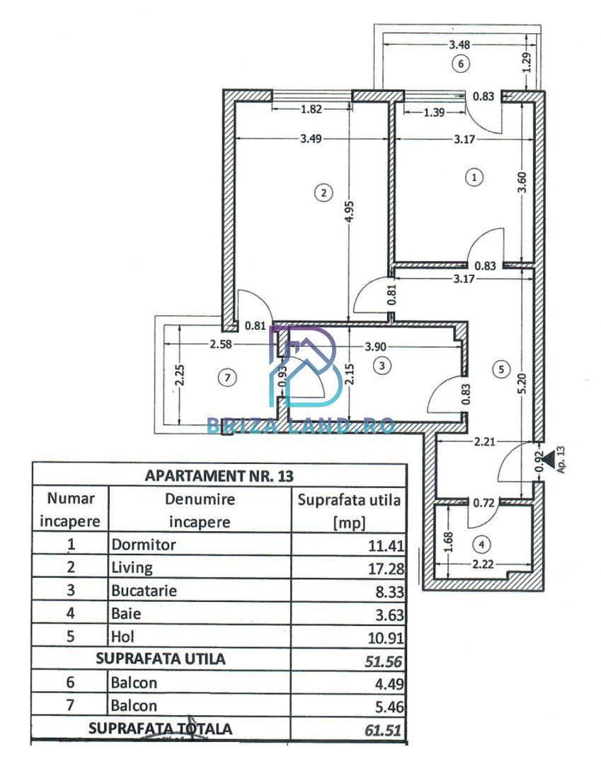
Agentia BrizaLand propune spre inchiriere apartament doua camere, situat in soseaua Salaj, complexul rezidential Confort Urban, situat la etajul 1, bloc compus din Parter + 9 Etaje, decomandat, cu suprafata utila totala de 61.5mp.

Compartimentare:
hol, living-room, bucatarie inchisa, dormitor, baie, doua balcoane.
Finisaje:
finisat modern: gresie, faianta, parchet, usi interioare PVC, obiecte sanitare, termopan, usa metalica, centrala termica; exterior izolat cu polistiren.

Mobilare si utilare :
complet mobilat, masina de spalat rufe, hota, centrala proprie, tv, vesela, cuptor electric, plita pe gaz.

Nu are loc de parcare

Locația este excelentă, având acces ușor la diverse facilități. În apropiere găsești:
restaurante precum „El Patron Kebap” și „Shaormeria Băneasa”
grădinițe și școli, cum ar fi „Școala nr.147 Petrache Poenaru”
parc pentru relaxare, „Parcul Humulești”
magazine, inclusiv „Carrefour Express”
stații de autobuz pentru transport rapid

Apartamentul se închiriază la prețul de 450euro/lună plus o luna garanție, cu un contract pe minim 12 luni.