Birou Victoriei | Banu Manta | 3 Camere | Bloc Nou | Centrala
Suprafata
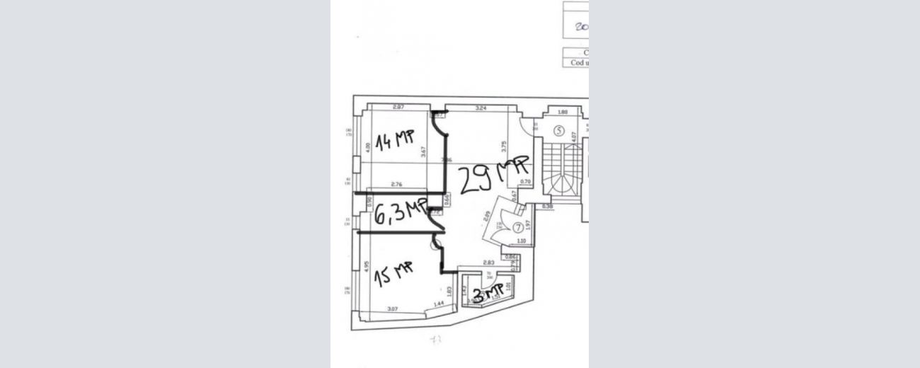
									70 m2
								ID
									315847784
								Va propunem spre inchiriere un spatiu de birouri de 70 mp intr-un bloc din 2009, la etajul 2/3 fara lift.
Este compartimentat astfel: hol/receptie, 2 birouri, baie, chicineta, balcon. De asemenea, dispune de centrala proprie si 2 aparate de aer conditionat. Se inchiriaza nemobilat.
Se preteaza pentru activitati fara trafic, exclus salon, studio sport, cabinet medical.
Situat pe o strada linistita, in spatele primariei sectorului 1!
 
												 
												 
												 
												 
												 
												 
												 
												 
								 
								 
								 
								 
								 
								 
								