imobiliare .net
Login
Inregistrare
Anunt
Tur 360
Alerte
Favorite
Mesagerie
Favorit
Sesizeaza neregula
An constructie
1920
Suprafata
154 m2
ID
2777656

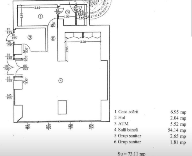
Imobiliar Expert Grup va propune spre inchirirere spatiu comercial in suprafata de 154 mp situat pe Calea Victoriei- Academiei. Spatiul este compus din Subsol in suprafata de 72 mp si Parter in suprafata de 82 mp. Ideal pentru cafenea, bistro, magazin de haine, etc



Pozitia pe harta