imobiliare .net
Login
Inregistrare
Anunt
Tur 360
Alerte
Favorite
Mesagerie
Favorit
Sesizeaza neregula

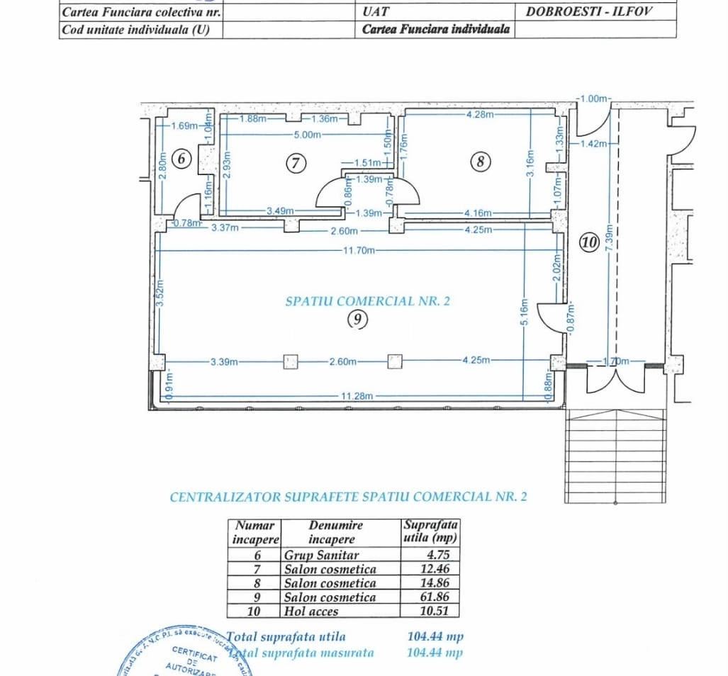
Inchiriere spatiu comercial Fundeni Dobroiesti

An constructie
2011 - 2030
Suprafata
105 m2
ID
315864215

Dobroiesti Inchiriere spatiu comercial situat la parterul unui bloc de 4 etaje, cu o suprafata totala de 105 mp si o vitrina stradala de 11 m. La momentul actual spatiul este compartimentat in 3 camere plus grup sanitar, insa poate fi reamenajat dupa necesitati. Se inchiriaza pentru orice activitate comerciala: magazin, salon infrumusetare, cabinet veterinar, cabinet medical, farmacie, fast food etc.