imobiliare .net
Login
Inregistrare
Anunt
Tur 360
Alerte
Favorite
Mesagerie
Favorit
Sesizeaza neregula

Pret+TVA*Baneasa//Bobrogeanu Gherea, Apartament 3 Camere

An constructie
2014
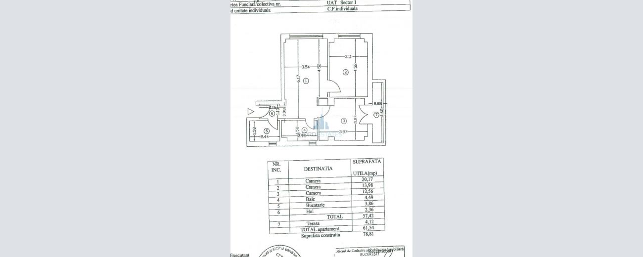
Suprafata
58 m2
Tip apartament
semidecomandat
Etaj
P / 2
Tip imobil
Bloc mixt
Nr. dormitoare
2
Stare constructie
Constructie finalizata
Nr. bai
1
ID
315852169

Pret+TVA
Avem plăcerea să vă prezentăm un apartament deosebit situat în zona Băneasa, pe strada Dobrogeanu Gherea. Acest spațiu generos cu 3 camere și 2 dormitoare este ideal pentru cei care caută confort și acces facil către principalele puncte de interes ale capitalei. Apartamentul, situat la parterul unui bloc mixt finalizat în 2014, oferă o suprafață total utilă de 62 mp, fiind ideal pentru familii sau cupluri.

Proprietatea se află într-o stare bună, însă necesită montarea centralei termice și reamenajarea băii și bucătăriei pentru a vă personaliza spațiul după gust. Finisajele interioare includ parchet, geamuri termopan, ușă metalică și baie cu geam. De asemenea, apartamentul dispune de un balcon deschis.

Locația excelentă vă asigură acces rapid la lacul Băneasa, Parcul Herastrau, stația de metrou Pod Băneasa, precum și la clinica Regina Maria, magazine, piață, școli și grădinițe, atât statale, cât și private. În plus, zona este bine deservită de transport în comun și facilități diverse, fiind perfectă pentru stilul de viață modern.

Toate proprietățile din portofoliul Agenției Nord Estates sunt anunțuri unice, exclusive și pot fi regăsite doar aici. Pentru informații rapide și detalii suplimentare, răspundem mult mai prompt telefonic și pe WhatsApp decât mesajelor de pe site. Nu rata oportunitatea de a deveni proprietar într-o zonă apreciată a Bucureștiului!


  • Usa metalica
  • Bucatarie inchisa
  • Centrala
  • Apometre
  • Contor gaze


Pozitia pe harta Pret+TVA*Baneasa//Bobrogeanu Gherea, Apartament 3 Camere