imobiliare .net
Login
Inregistrare
Anunt
Tur 360
Alerte
Favorite
Mesagerie
Favorit
Sesizeaza neregula
An constructie
2008
Suprafata
300 m2
Suprafata teren
300 m2
Tip casa
Individuala
Structura rezistenta
Beton/bca/caramida
Nr. dormitoare
4
Nr. bai
4
ID
2904089

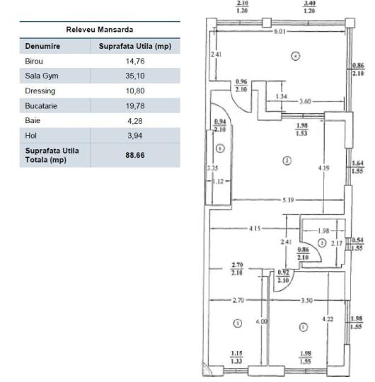
Casa de vanzare este situata favorabil intr o zona linistita si verde din Bucuresti aproape de Metrou Laminorului in Cartierul Bucurestii Noi Zona este preponderent rezidentiala cu spatii comerciale .Transportulpublic este bine deservit oferind conectare si acces rapid la facilitatile urbane prin liniile deMetrou Statia Laminorului si linii de transport de suprafataDescriereProprietatea de vanzare este reprezentata de o constructie cu destinatie rezidentiala si terenTerenul intravilan are o forma poligonala regulata, cu suprafata de 300 mp si deschiderea stradala de 10ml.Casa tip duplex, cu regim de inaltime S+P+ 1 E+M, cu suprafata construita desfasurata 330 mp estedispusa astfelSubsolcu suprafata utila de 39 mp care inlcude garaj hol si camera de depozitareParterulare suprafata utila totala de 108 mp si include living generos birou baie hol casa scariisi o terasa spatioasaEtajin suprafata utila totala de 94 mp trei dormitoare doua bai, hol si doua teraseMansardaare suprafata utila de 89 mp si include birou sala gym, dressing, bucatarie baie siholImobilulare fundatii tip radier si structura mixta din zidarie portanta cu compartimentari din BCA si acoperisdin lemn cu invelitoare din tabla Tamplaria exterioara este din PVC cu geam termopan Proprietatea nu estebransata la utilitatiFinisajeinterioare Proprietatea nu este finalizata peretii sunt la BCA si pardoselile din ciment iarcompartimentarile interioare nu sunt executate astfel ca spatiul poate fi amenajat si personalizat in functiede nevoi


  • Asfalt


Pozitia pe harta