imobiliare .net
Login
Inregistrare
Anunt
Tur 360
Alerte
Favorite
Mesagerie
Favorit
Sesizeaza neregula

Teren Intravila Magurele cu PUZ aprobat P+3

Suprafata
2647 m2
Tip teren
Intravilan
Clasificare teren
Construibil
ID
315847143

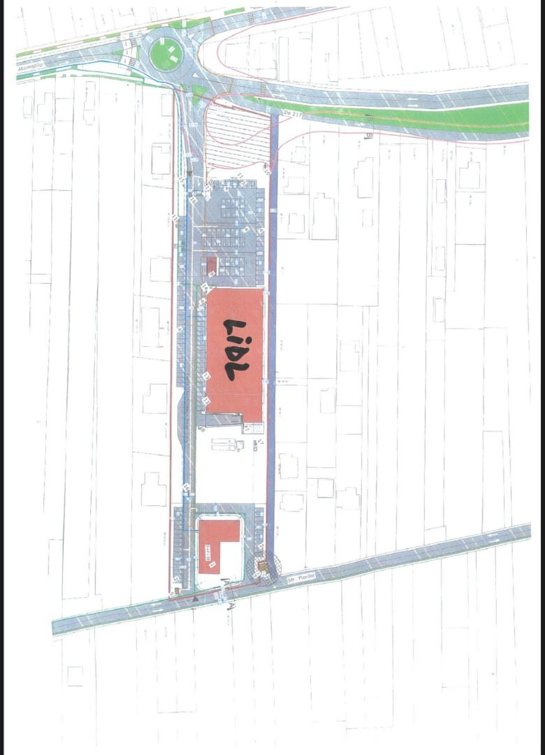
Spre vanzare teren 2647 mp str. Florilor, Magurele, Ilfov.
Locatia terenul este in continuarea magazanului LIDL dublu acces din strada Florilor si parcarea Magazinului LIDL.
Avem coeficientii POT 40% CUT 1,2.
Zona LC - zona locuinte colective cu permisivitati de comert - servicii.
Deschidere aproximativa la Str. Florilor de 48 m liniari.


  • Asfalt
  • Gaze
  • Apa
  • Canalizare
  • Electricitate


Pozitia pe harta Teren Intravila Magurele cu PUZ aprobat P+3